August 12, 2022

Инвестиции в редевелопмент

Ну что, и снова наша постоянна рубрика.

С предыдущими разборами находок можно ознакомиться здесь, здесь и здесь, а еще здесь.

Объект №1

Москва, ЦАО, р-н Пресненский, Леонтьевский пер., 2АС2

Ссылка на объявление.

Вторая линия, внутри квартала.
10 минут пешком до ст.м. «Пушкинская», «Арбатская», «Тверская», «Охотный ряд»

Дом расположен в самом центре исторической Москвы, пронизанной атмосферой старой, доброй, культурной столицы. Пешая доступность до всех знаковых ключевых мест: Кремль, Красная площадь, Парк Зарядье и т.д.

Фотографии

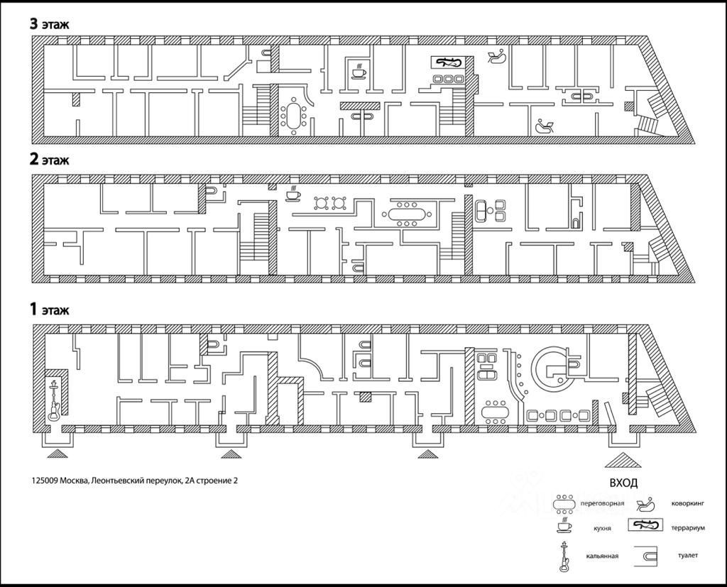
Планировка

В результате сбора различной информации из открытых источников мы получаем:

1. Земельный участок 555 кв.м.(пятно под зданием) в аренде до 08.09.2030 года.
ВРИ: эксплуатации здания под административные цели
КС: 69 348 015,9
Соседний участок 315 кв.м под благоустройство территории без права коммерческого использования, застройки, ограждения и организации автостоянки (парковки) до 12 м/м. Огороженная территория.

2. Здание 1890 года, кирпичное, перекрытия ж/б. Кровля скатная металлочерепица с мансардными окнами.

1 377 кв.м: подвал и 2 наземных этажа + мансарда
Подвал - 232,7 кв.м, 1 этаж 379,4 кв.м, 2 этаж 380,1 кв.м, мансарда 384,9 кв.м

Ранее в здании сидел коворкинг.

Год реконструкции - 1997
Не является памятником архитектуры.
Электричество 150 кВт.
Центральные коммуникации: отопление, холодная вода, канализация. Горячая вода от бойлера. Вентиляция и кондиционирование: локальные сплит-системы
Много окон по периметру.
6 отдельных входов с улицы (+ 2 в подвалы) - возможность деления на 4 независимых блока. Высота потолков: 2,8 м
КС (прошла переоценка): 434 926 091,56

Цена продажи: 300 млн. / 217 850 ₽ за м²

3. При первом взгляде на здание и учитывая расположение, нам пришла идея сделать здесь проект "Таунхаусы у Кремля".
В таком случае продаваемая площадь 1 144 кв.м под таунхаусы.
4 входа = 4 апартамента по 286 кв.м

Стоимость продажи метра = 700 000 руб./кв.м *286 = 200,2 млн стоимость 1 таунхауса * 4 = ВЫРУЧКА 800,8 млн

Затраты на редевелопмент считаем исходя из того, что это премиальный проект, который требует соответствующей отделки: 100 000 на 1 кв.м = 137,7 млн

Доход: 800,8 млн - 137,7 млн - 300 млн = 363,1 млн, но для реализации объекта необходимо:

- увеличение кВт мощности,
- смена ВРИ, которая обойдется дорого,
- без серьезной работы над фасадом не обойтись (в таком состоянии не продаваемо)

ВЫВОД: несмотря на потенциально хорошую выручку, реализация проекта может быть очень долго, учитывая высокую конкуренцию с новостройками-высотками и пентхаусами в центре и стагнацию на рынке...а беря во внимание стоимость лотов, можно даже сказать мертвый рынок.

Так, а если попробовать реализовать здесь проект похожего коливинга Сolife, который мы разбирали в нашей статье.

Здания очень похожи друг на друга, даже по площади. В Colife 1 586,8 кв.м, где внутри — 58 одноместных и двухместных номеров, две кухни, прачечная и общие зоны, где можно вместе посмотреть фильм или организовать вечеринку.

1 586,8/58=27,3 кв.м - берем эту цифру в расчет.

На площади 915 кв.м (без учета мест общего пользования, а только лишь комнаты) можно сделать 34 номера (из расчет 27,3 кв.м).

Одноместные комнаты в Сolife обойдутся в 50 и 55 тысяч, а при двухместном заселении каждый заплатит 29 тысяч рублей. Оплата за свет, воду и интернет не входит стоимость аренды и производится отдельно.

Но у нас локация на порядок лучше, это самый центр. Для расчетов стоимости проживания берем среднюю стоимость в локации равную 80 000 руб.

МАП при 100% загрузке: 34 номеров * 80 000 = 2 720 000, но в расчет берем загрузку 70%=1 904 000 руб.
ГАП: 22 848 000 руб., но это с учетом расходов на содержание и обслуживание. Если исходить из расчета, что чаще всего услуги управление в проектах составляют порядка 40%, то ЧОД составит 13 708 800 руб. или 3% доходности (если затраты 300 млн выкуп и ремонт 69 млн).

ВЫВОД №2: все таки идея с таунхаусами лучше

Объект №2

САО, р-н Беговой, Ленинградский просп., 33А

Помещение свободного назначения, площадью 443,2 м², расположенное на 2-ом этаже.

Ссылка на объявление.

Первая линия. На выходе из метро Динамо. В непосредственной близости от Ленинградского проспекта. Напротив Стадиона "Динамо".

Окружение
В окружении множество ВУЗов и общежитий. Мы знаем, что не всем порой хватает места в общежитиях. Снимать однокомнатные квартиры дорого и не всегда родители могут обеспечить ребенку аренду квартиры, тем более не протяжении нескольких лет.
Поэтому нам пришла идея рассмотреть эту площадь под маленькие студии для такой целевой аудитории, как студенты...а как мы все знаем, ежегодно, число поступающих студентов в московские вузы просто зашкаливающее.
Посмотрим что из этого выйдет.

Фотографии

В результате сбора различной информации из открытых источников мы получаем:

1. Это кирпичный жилой дом 1968 года постройки на 520 квартиры, с нежилыми первыми 2-мя этажами.
Перекрытия: железобетонные, каркас: кирпичный, стены: кирпичные, фундамент: ленточный.
Электрическая мощность 83 кВт, потолок 4,2 метра (что позволят сделать студии с антресолями), витринные окна по одной стене выходят на Ленинградский проспект, несколько мокрых точек.
Состояние помещения: без ремонта
Общий вход на 2 этаж с арендатором "Стоматология".

Вот какие ремонтные работы проводились и когда, а какие только будут проводиться в доме:

▪️ Ремонт внутридомовых систем электроснабжения в 2039-2041 году.
▪️ Ремонт внутридомовых систем газоснабжения в 2042-2044 году.
▪️ Замена стояков холодного водоснабжения в 2015-2017 году.
▪️ Ремонт разводящих внутридомовых магистралей холодного водоснабжения в 2015-2017 году.
▪️ Замена стояков горячего водоснабжения в 2015-2017 году.
▪️ Ремонт разводящих внутридомовых магистралей горячего водоснабжения в 2015-2017 году.
▪️ Ремонт стояков канализации в 2015-2017 году.
▪️ Ремонт выпусков и сборных трубопроводов системы канализации в 2015-2017 году.
▪️ Ремонт внутридомовых систем теплоснабжения (с заменой стояков) в 2015-2017 году.
▪️ Ремонт разводящих магистралей системы теплоснабжения в 2015-2017 году.
▪️ Ремонт пожарного водопровода в 2015-2017 году.
▪️ Ремонт крыши в 2039-2041 году.
▪️ Ремонт или замена мусоропровода в 2015-2017 году.
▪️ Ремонт или замена внутреннего водостока в 2024-2026 году.
▪️ Замена лифтового оборудования, ремонт лифтовых шахт в 2036-2038 году.

Судя по списку даже уже проведенных работ, можно сказать, что дом в хорошем состоянии.

Цена продажи: 58 млн. / 130 867 ₽ за м²

Кстати, пол года назад мы уже видели это помещение в продаже, и стоило оно тогда 68 млн руб.

2. В качестве аналога берем проект редевелопмента "Апарт-отель Travelto Петровский Парк", где студия с отделкой white box площадью 16 кв.м стоит 5,9 млн руб./370 000 руб. НО! Это на 1 станцию метро дальше, и еще 15 минут пешей доступности от метро.

На данной площади можно организовать порядка 20 студий.
Ориентировочная стоимость продажи 1 м² по 350 000 руб. * 20 кв.м = 7 000 000 * 20 шт. = ВЫРУЧКА 140 млн.

Учитывая, что нам не нужно заниматься фасадом, затраты на ремонт считаем исходя из 50 000 руб. на общую площадь, получаем 22 млн. Итого общие расходы с учётом покупки: 80 млн.

Потенциальная чистая прибыль: 60 млн руб., что составляет 75% на вложенные средства.

Все было бы хорошо, если бы мы не увидели, что в соседнем крыле, кто то уже делает подобный проект и купил часть помещения, переоборудовал в маленькие студии. И продает лоты по 15 кв.м за 3,3 млн, то есть 220 000 руб.
Упс... пересчитываем нашу фин модель: 220 000 руб. * 20 кв.м = 7 000 000 * 20 шт. = ВЫРУЧКА 88 млн.

Потенциальная чистая прибыль: 8 млн руб., что составляет 10% на вложенные средства.

ВЫВОД: судя по всему, именно из-за фин.модели версии 2.0 помещение все еще продается и ни как не может найти своего покупателя.

Объект №3

на торгах мы нашли вот здание по адресу: Москва, СЗАО, р-н Академический, пр-кт 60-летия Октября, д. 21а.

Глядя на него, хочется сказать - "Богом забытое место".

м. Академическая в 6 минутах пешей доступности. Вторая линия.

Окружение: в непосредственной близости расположено множество школ, гимназий, Акустический институт имени академика Н. Н. Андреева, Парк Новые Черемушки, Академический парк.

Поэтажные планировки

Фотографии здания

Начальная цена торгов: 108 464 000 руб.

Шаг аукциона: 1 084 640 руб.

Задаток: 21 692 800 руб.

В результате сбора различной информации из открытых источников мы получаем:

1. Земельный участок, общей площадью 1 603 кв.м, ВРИ: для размещения объектов здравоохранения. КС: 38 млн.руб.

Право собственности на объект оценки принадлежит г. Москве.

Наличие территории свободного земельного участка позволяет организовать парковку.

2. Кирпичное 2-этажное здание (+ подвал) общей площадью 1042, 6 кв.м, 1957 года постройки. Планировка коридорно-кабинетного типа.
Объект относится к исторически ценным градоформирующим объектам «9-й квартал района «Черёмушки», 1950-е гг., архитекторы Н.А. Остерман, С. Лященко, Г. Павлов и др. - Здания, торговые центры».

Состояние здания: Удовлетворительное, требуется капитальный ремонт. Обеспеченность инженерными коммуникациями здания: водопровод, канализация, отопление, горячее водоснабжение, электроснабжение.

Право собственности на объект оценки принадлежит г. Москве.

3. Продаваемая площадь, согласно экспликации составляет 562 кв.м (стратегия продажи апартаментов в розницу).

В качестве аналога берем проект редевелопмента ЛОФТ на Вернадского 41.

Мы сейчас опустим историю с тем, как "прекрасно" это все выглядит.
500 крошечных студий в проекте.

Готовые апартаменты в "муравейнике" у метро, где на 2-м этаже есть варианты студий 14,4 кв.м стоимостью 4,8 млн/335 000 руб.; студия 15,3 кв.м стоимостью чуть более 6 млн/395 тыс. Все апартаменты с чистовой отделкой.

В окружении идет строительство ЖК от ПИК Кольская 8, где студия 20-25 кв.м. стоит 6,8–10,1 млн ₽ (339 тыс.)  с чистовой отделкой.

Потенциальная чистая прибыль: 114,5 млн руб., что составляет 34% на вложенные средства.

Стоимость продажи 1 кв. м апартаментов: 350 тыс. с отделкой White box.
Потенциальная выручка с продаж апартаментов может составить: 196,7 млн руб.
Затраты на ремонт из расчет 70 тыс.: 73 млн руб.
Итого общие затраты: 108,5 млн + 73 млн = 181,5 млн руб.

Потенциальная прибыль: 15,2 млн.

Хммм....перспектива так себе.

Уже в третий раз, анализируемое задание нам очень напоминает проект коливинга Сolife, который мы уже упомянули выше.

Давайте и для этого здания попробуем рассчитать проект концепции коливинга, ориентируясь на данные Сolife. Может там больше денег?

На площади 562 кв.м можно сделать 21 номеров (из расчет 27,3 кв.м).

МАП при 100% загрузке: 21 номеров * 54 000 = 1 134 000, но в расчет берем загрузку 70%=793 800 руб.
ГАП: 9 525 600 руб., но это с учетом расходов на содержание и обслуживание. Если исходить из расчета, что чаще всего услуги управление в проектах составляют порядка 40%, то ЧОД составит 5 715 360 руб. или 3% доходности (если затраты 181,5 млн).

ВЫВОД: как видите, здание не очень то и перспективное.

ОБЩИЙ ВЫВОД: из сотен продаваемых объектов, мы нашли 3, казалось бы интересных на первых взгляд. Но после более тщательного анализа, не все оказались такими уж привлекательными с инвестиционной точки зрения.